Bell Estates

LOCATION: Amagansett, New York
DATE: 2020
TYPE: Ground Up

Design Principal: Nilay Oza AIA

 

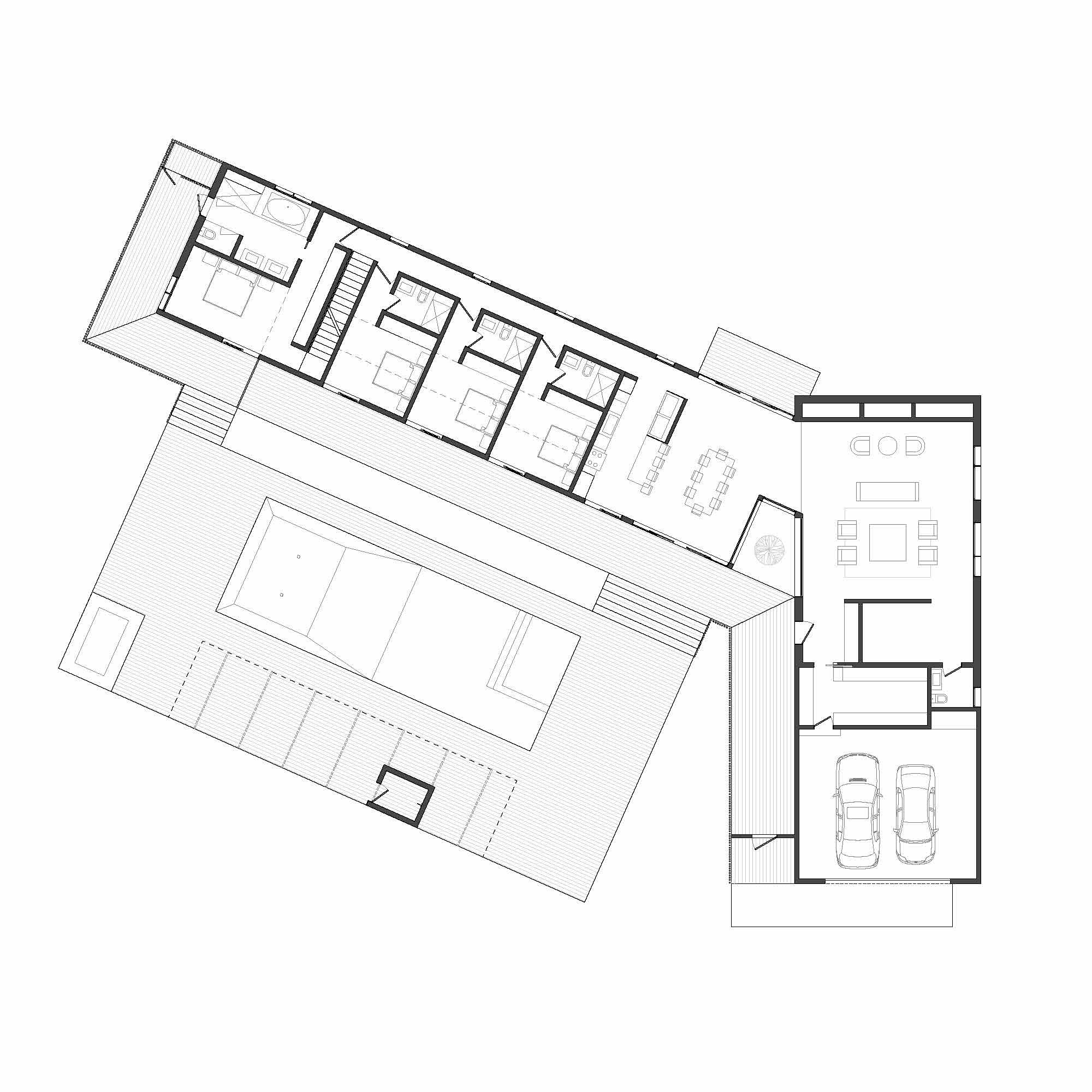
An aggressively sloping site located on the downward side of a nearby bluff put forward extensive challenges in site drainage and potential soil excavation and/or retain. The two-gable structure, connected by a flat roof breezeway and overhang, converges at an angle relating to the pie-shaped property in an effort to maximize the open outdoor spaces.

To address the severe typography, the home was nestled into the site providing views, privacy at the converging roads, and retaining the soil while re-directing the natural runoff. The typography also provided the opportunity for the main gable to overhang at the end of the property creating a private walkout basement. The stepped decks and outdoor spaces were a design opportunity provided by the site, but it allowed the family extensive views, immediate outdoor access, and a variety of outdoor spaces to be enjoyed year-round. Executed by Oza Sabbeth Architects

The main living areas were centered around the family and their wishes to be surrounded by the outdoors, along with plenty of moments to gather as a family and warm up during the winter. The main living room, with its tall vaulted ceiling and exposed steel plate structure, acts as the anchor to the home. The floating fireplace, held by an exposed steel beam that spans the width of space, offers a dramatic and warm center of the home. The wall above, clad in walnut, echoes the warmth of the fire throughout the space.

The adjacent courtyard acts as a rock garden with an opening above in the roof. The focal point of the home experienced from the main living spaces becomes ever more present whenever it rains. As you approach the home it captures you senses, first in the sound of the built water fountain pouring down the rocks and into the gravel, juxtaposed against the striking gable facade and private vegetation.