Cedar Farm

LOCATION: East Hampton, New York
DATE: 2023
TYPE: Ground Up

Design Principal: Nilay Oza AIA

AWARDS: AIA Long Island Archi Awards – Commendation – Residential Single Family (over $3 million)

 

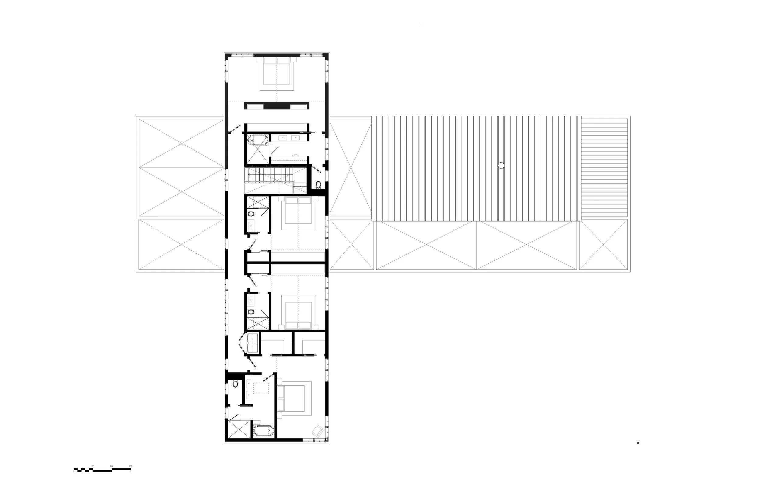
This two-acre property is located in the heart of East Hampton's horse country. It is fashioned after many utilitarian structures in this area. Horse Barns tend to be accretive structures, added over time. We tried to bring this addictive aspect to the design of the home by designing it as an assembly of a gabled structure and an industrial shed structure. The home features a large solar array and an extensive geothermal system, added to this is a good design shading system leading to a net zero energy consumption. Executed by Oza Sabbeth Architects

The combination of a shed roof and a gabled form is mediated by a porte coche or breezeway. This breezeway is ideally suited to serve as the main entrance to the home . . . Once under the breezeway, one can enter the house or walk through the breezeway to the pool area beyond.

This house does not have a formal backyard. Every flank of the house defines an outdoor zone - Entry, bedroom cove, BBQ zone, Pool access, and free access to the garden from the living room. The kitchen, dining, and living room of the home are housed under a large, shed roof. All these spaces open onto a wide shaded verandah. Due to the clerestory, the interior spaces always remain well-lit and airy. A large open floating fireplace anchors this living room without impeding visual connection.